Римарком



НАЙТИ АГЕНТА В ЧЕХОВЕ
Московская обл., г.Чехов
НАЙТИ АГЕНТА В ТиНАО
г. Москва, г. Троицк

Продажа : Коммерческая недвижимость, 1 комнат(а)

Московская область, Красногорский
Красногорск г., Успенская ул., 3
ID: 134639567
Цена: 200 000 000 ₽
Телефон: +79671866153



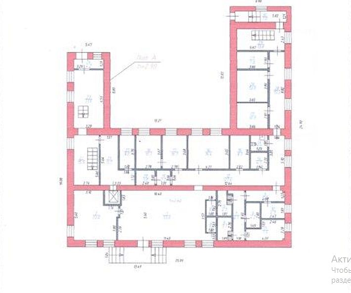
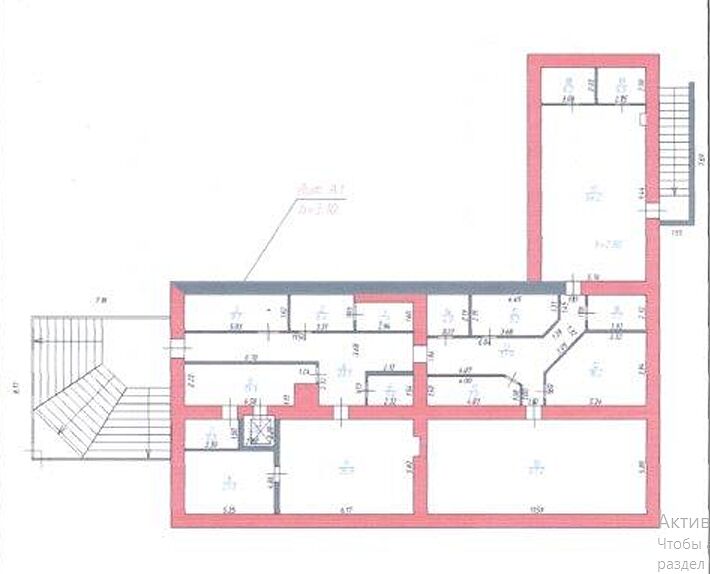
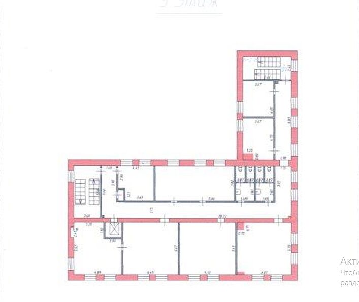
Продается деловой центр "Успенский" общей площадью 1810 м2. на земельном участке 1276 м.кв.
Объект и земля находятся в собственности, все коммуникации обслуженные, внутри и снаружи качественный ремонт.
2 входа с улицы и со двора.
60 помещений разной квадратуры на 100% заняты арендаторами, крупные школа танцев и языковая школа.
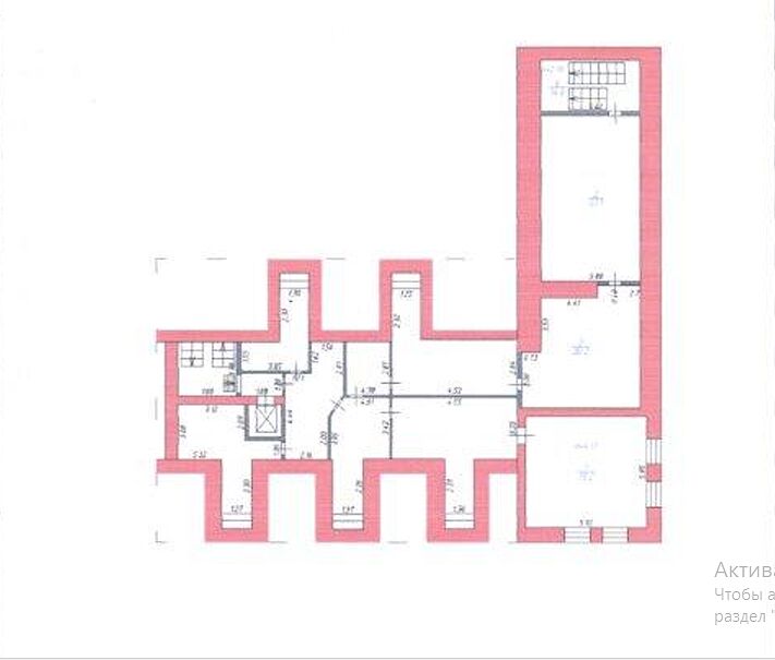
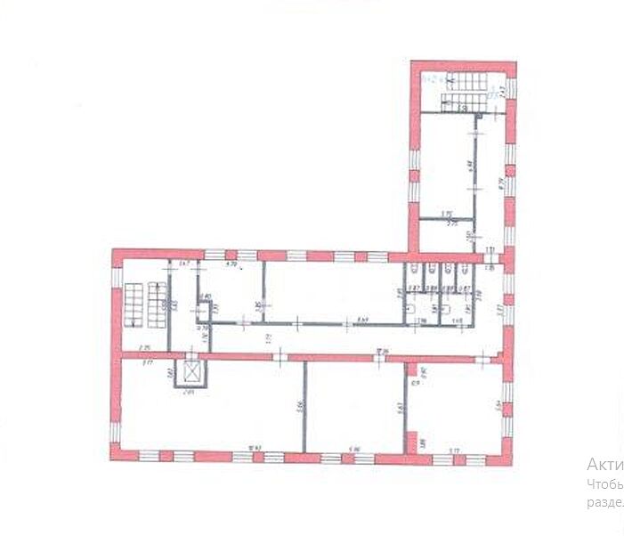
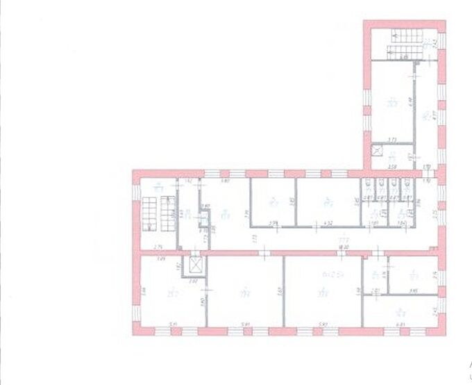
1-4 этаж: офисная планировка, помещения до 30 кв.м. можно переоборудовать под гостиницу, ВРИ позволяет.
Цоколь: зальная планировка, школа танцев.
Мансарда технический этаж и административная зона.
Здание построено из кирпича и отделано снаружи вентилируемым фасадом, внутри отштукатурено и покрашено, на полу плитка, потолки подвесные.
На каждом этаже сан. узел., отдельное помещение под оборудование для вытяжки и электрооборудования, все оборудование в отличном состоянии.
Весь штат сотрудников обслуживающих оборудование и помещение есть.

Отдельный вход в здание с улицы и со двора.
Здание охраняется ЧОП.
В здании: отличная приточная вентиляция, центральное отопление, гидрантная система пожаротушения, центральное водоснабжение,150 кВт электроэнергии.
Парковка автомобилей - как наземная внутри участка, так и вдоль дороги, парковка на 10 машиномест.
7 мин. транспортом от м. Красногорская, в 8 км от МКАД.
Быстрый выход на сделку.

Общая площадь, кв.м.: 1810
Комнат: 1
Санузлы и их тип: 5
Всего этажей: 5
Шоссе: Волоколамское шоссе
Расстояние до МКАД, км: 15

Расположение на карте



Дополнительная скидка по ипотеке
Получите дополнительную скидку* от наших партнёров или бесплатную консультацию по ипотеке:
ПАО Сбербанк — 0,3%
АО ЮниКредит Банк — 1%
АКБ Абсолют банк ПАО — 0,51%

* Оставив заявку на сайте rimarcom.ru, вы зафиксируете получение дополнительной скидки по ипотечной программе, которую предоставляют наши банки-партнёры.
Заказать обратный звонок

ID объекта: 134639567

Написать сообщение

ID объекта: 134639567

Римарком