Римарком



НАЙТИ АГЕНТА В ЧЕХОВЕ
Московская обл., г.Чехов
НАЙТИ АГЕНТА В ТиНАО
г. Москва, г. Троицк

Аренда : Коммерческая недвижимость, 7 комнат(а)

Московская область, Каширский
Кашира г., Садовая ул., 24, к 2
ID: 133818861
Цена: 337 000 ₽ / в месяц
Телефон: +79683796802



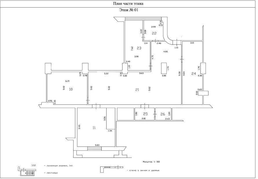
Сдается в аренду нежилое помещение на 1 этаже жилого дома по адресу г. Кашира, ул. Садовая, д.24, к.2.
Помещение площадью 225 м2, имеет 7 отдельных комнат, площадь комнат 90, 30, 30, 25, 29 и т.д. Дом - 1982 года постройки, 9 этажей, 3 подъезда.
Возможна аренда помещений как по отдельности, так и все целиком. Стоимость аренды во всех случаях обсуждается с собственником. Все помещения требуют ремонта под нужды арендатора. Возможность предоставления арендных каникул.
Перед входом есть наземная парковка, удобный подъезд и выезд автотранспорта. Помещение в центре города, с хорошим трафиком. В округе вся инфраструктура: 4 школы, 6 дет садов, 4 поликлиники, остановка общественного транспорта. Автобусы городские и междугородные.
Оперативный показ, аренда от собственника.

Общая площадь, кв.м.: 225
Жилая площадь, кв.м.: 222
Комнат: 7
Этаж: 1
Всего этажей: 9
Шоссе: Каширское шоссе
Расстояние до МКАД, км: 100

Расположение на карте



Заказать обратный звонок

ID объекта: 133818861

Написать сообщение

ID объекта: 133818861

Римарком