Римарком



НАЙТИ АГЕНТА В ЧЕХОВЕ
Московская обл., г.Чехов
НАЙТИ АГЕНТА В ТиНАО
г. Москва, г. Троицк

Аренда : Коммерческая недвижимость, 13 комнат(а)

Московская область
Красноармейск г., Испытателей проспект
ID: 133150417
Цена: 424 500 ₽ / в месяц
Телефон: +79683796802



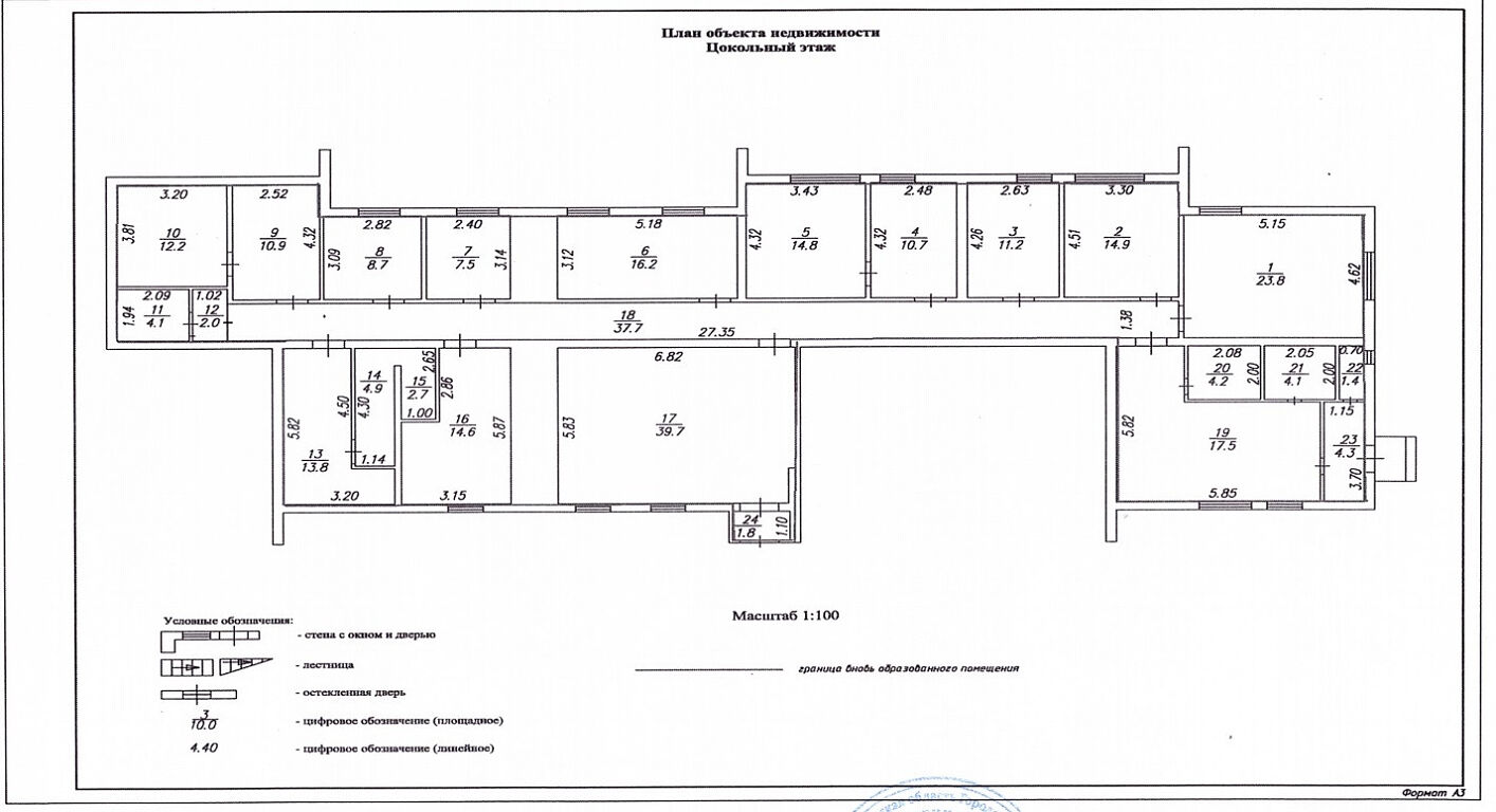
Сдается в аренду на длительный период помещение свободного назначения на первом этаже многоквартирного дома в городе Красноармейск. Дом находится в самом центре города на пересечении проспекта Испытателей и бульвара Зубова. В шаговой доступности автостанция Красноармейск.
Помещение имеет площадь 283 м2, 2 отдельных входа, 13 изолированных комнат, 5 комнат с мокрыми точками, включая санузел и душевые, а также 3 подсобки. Планировка помещений коридорного типа, что весьма удобно в коммерческом плане.
Недалеко от дома находятся образовательные учреждения, почта России, небольшой сквер, рядом остановка, МФЦ в шаговой доступности.
Хорошая проходимость, есть наземная парковка, удобный автомобильный подъезд. Потенциальная аудитория – жители микрорайона, недалеко школа, детсады.
Здание 1980 года постройки, кирпичное, 9 этажей. Коммуникации все центральные, помещение требует косметического ремонта.
Отлично подойдет под ПВЗ, торговлю, офис и др подобные предприятия.
Оперативный показ, аренда от собственника.

Общая площадь, кв.м.: 283
Комнат: 13
Этаж: 1
Всего этажей: 9
Шоссе: Ярославское шоссе
Расстояние до МКАД, км: 40

Расположение на карте



Заказать обратный звонок

ID объекта: 133150417

Написать сообщение

ID объекта: 133150417

Римарком