Римарком



НАЙТИ АГЕНТА В ЧЕХОВЕ
Московская обл., г.Чехов
НАЙТИ АГЕНТА В ТиНАО
г. Москва, г. Троицк

Продажа : Дом, 4 комнат(а)

Московская область, Ступинский
Проскурниково д., Молодежная ул., 8
ID: 122637081
Цена: 9 900 000 ₽
Телефон: +79267772652



Продается просторный двухэтажный дом 133 кв.м на участке 12 соток в Ступинском районе.
Идеальное сочетание современного комфорта и загородной тишины.

Ключевые преимущества:
* **Простор: 133 кв.м жилой площади + большая свободная планировка второго этажа (можно обустроить под ваши нужды: гостевую зону, кабинет, дополнительные спальни).
* **Участок: 12 соток на краю улицы, рядом проселочная дорога — минимум соседей и машин.
* **Коммуникации:** Полная автономия и комфорт. Электрический котел, собственная скважина с чистой водой (42 м), современный септик. Газовая магистраль в 100 метрах — есть возможность подключения.
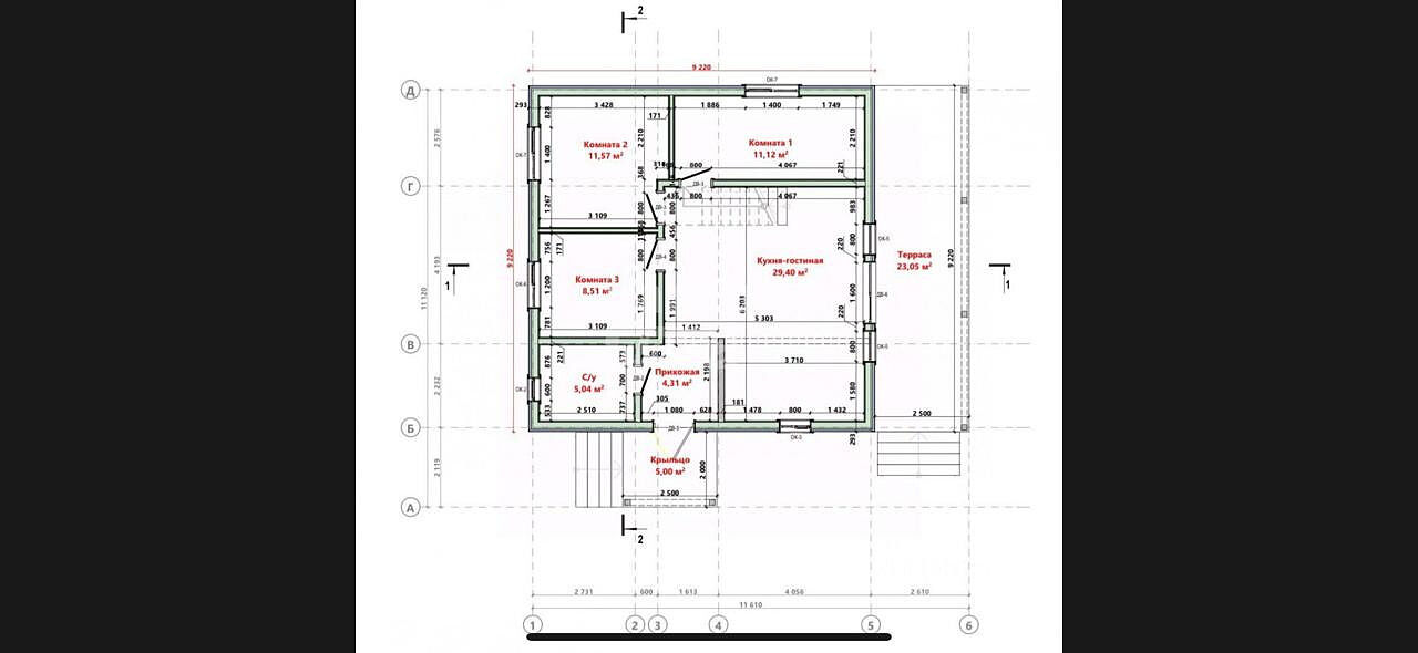
* **Планировка: Продуманная. На первом этаже — 4 изолированные комнаты: большая кухня-гостиная для семейных вечеров и 2 спальни для уединения, ещё комната, санузел, бойлерная.
* **Особенности:** Дом построен из экологичного бруса и облицован доской, что обеспечивает тепло зимой и прохладу летом. Есть терраса для отдыха на свежем воздухе. Фундамент на сваях (железобетонные 3 метра) — надежно и долговечно. Гидроизоляция, сетка от грызунов, под обвязкой дома. Обвязка – строганый сухой клееный брус – 200*200, обработанный био и огнезащитой 2 раза. Паро и влагоизоляция стен, потолка – высокодиффузионная мембрана. Вентеляционный зазоры. Крыша – металлочерепица. Окна из профиля.
***Отличная транспортная доступность до станций ж/д Привалово, Михнево, трассы М-4 "Дон". В пешей доступности конный спортивный клуб "Конное Подворье". Отличная локация для велопрогулок в летний период и лыжни в зимний. В поселке Михнево есть рынки, сетевые магазины, школы, сады, спортивные клубы, парк отдыха, банки, все службы доставки и медучреждения.
Показ в согласованное время.

Общая площадь, кв.м.: 133
Жилая площадь, кв.м.: 65
Площадь кухни, кв.м.: 15
Комнат: 4
Санузлы и их тип: 2
Всего этажей: 2
Площадь участка: 11
Шоссе: Каширское шоссе
Расстояние до МКАД, км: 58

Расположение на карте



Дополнительная скидка по ипотеке
Получите дополнительную скидку* от наших партнёров или бесплатную консультацию по ипотеке:
ПАО Сбербанк — 0,3%
АО ЮниКредит Банк — 1%
АКБ Абсолют банк ПАО — 0,51%

* Оставив заявку на сайте rimarcom.ru, вы зафиксируете получение дополнительной скидки по ипотечной программе, которую предоставляют наши банки-партнёры.
Заказать обратный звонок

ID объекта: 122637081

Написать сообщение

ID объекта: 122637081

Римарком