Римарком



НАЙТИ АГЕНТА В ЧЕХОВЕ
Московская обл., г.Чехов
НАЙТИ АГЕНТА В ТиНАО
г. Москва, г. Троицк

Продажа : Дом, 4 комнат(а)

Московская область, Чехов
Солнечный круг п.
ID: 122508744
Цена: 6 600 000 ₽
Телефон: +79636566013



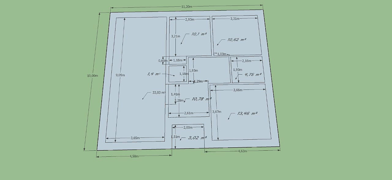
ПРОДАЕТСЯ ТЕПЛЫЙ ОДНОЭТАЖНЫЙ ДОМ ИЗ КЕРАМИЧЕСКОГО КИРПИЧА!!! Новый дом расположен в деревне Филипповское Чеховского района (поселок Солнечный Круг). Площадь дома 95м2 на участке 8.2 сот.

Качественный дом для круглогодичного проживания!
  • Стены - керамический кирпич, с утеплением и вент зазором, толщина стены 50 см,
  • фундамент - монолитный ж/б (свайно ростверковый + плита),
  • крыша - металлочерепица,
  • система снегозадержания
  • водосточная система
  • дренаж участка
  • газ в 500м метрах от дома


Внутренняя отделка white box (предчистовая):
  • стены выровнены и оштукатурены под покраску или обои
  • сделана вся разводка электрики (подключение 15 кВ)
  • в дом заведена вода из скважины (питьевая)
  • сделана разводка канализации
  • стяжка пола
  • система теплый пол
  • окна - энергосберегающие мультифункциональные стеклопакеты профиль 70 мм
  • входная металлическая дверь с терморазрывом.

ПРИ ЖЕЛАНИИ ВОЗМОЖНО ВЫПОЛНЕНИЕ ЧИСТОВОЙ ОТДЕЛКИ "ПОД КЛЮЧ"

Отличная планировка:
  • Три изолированные светлые спальни,
  • просторная кухня-гостиная,
  • совмещенный санузел
  • коридор
  • бойлерная


Дом расположен на участке 8,2 сотки, участок ровный, сухой (на возвышении), с асфальтированным подъездом. Выполнены дренажные работы по периметру.

Прекрасное месторасположение, как для круглогодичного проживания, так и для семейного отдыха:
  • экологически чистый район
  • рядом грибной лес
  • озеро для рыбалки и купания
  • в поселке есть магазины,
  • пункты выдачи (озон вайлберриз)
  • вывоз мусора
  • чистка снега
  • автобусная остановка (прямые автобусы на Москву и на Чехов)
  • школьный автобус
  • школа и детский сад - около 5 км
  • ГАЗ В 500М ОТ ДОМА.


Условия при покупки в ипотеку и с мат капиталом обсуждаются отдельно.
Один взрослый собственник
Помощь в оформлении.

Общая площадь, кв.м.: 95
Комнат: 4
Санузлы и их тип: совмещенный
Всего этажей: 1
Площадь участка: 8
Шоссе: Симферопольское шоссе
Расстояние до МКАД, км: 57

Расположение на карте



Дополнительная скидка по ипотеке
Получите дополнительную скидку* от наших партнёров или бесплатную консультацию по ипотеке:
ПАО Сбербанк — 0,3%
АО ЮниКредит Банк — 1%
АКБ Абсолют банк ПАО — 0,51%

* Оставив заявку на сайте rimarcom.ru, вы зафиксируете получение дополнительной скидки по ипотечной программе, которую предоставляют наши банки-партнёры.
Заказать обратный звонок

ID объекта: 122508744

Написать сообщение

ID объекта: 122508744

Римарком